Zum Inhalt springen
Ferienhaus -Karstens-
im Nordseeheilbad Büsum | Otto- Johannsen- Straße 5
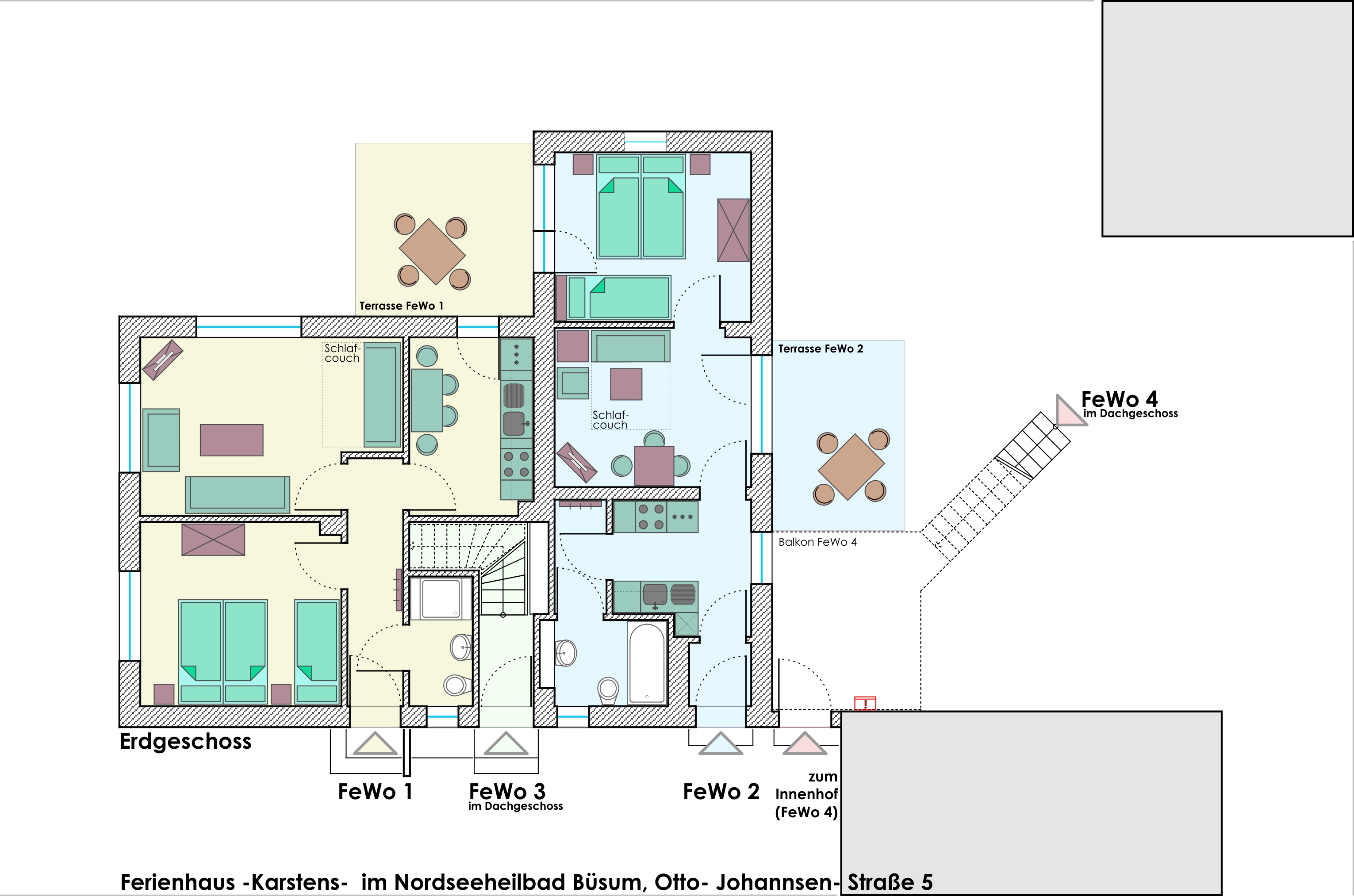
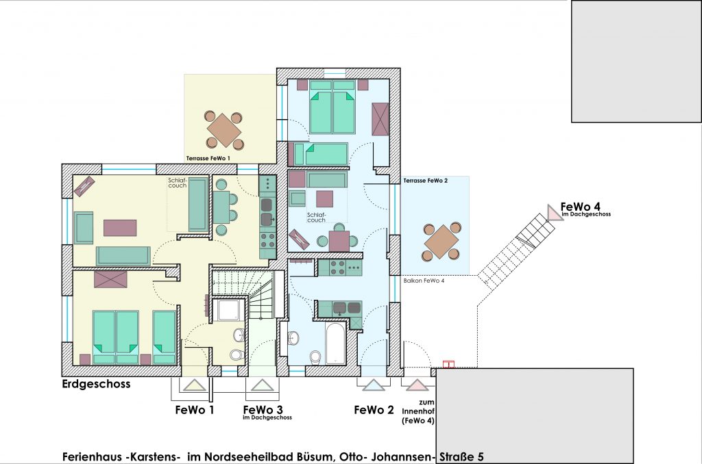
Grundrisse
Grundrisse der Wohnungen
Grundriss Erdgeschoss
Grundriss Dachgeschoss
Impressum
Copyright © 2026 Ferienhaus -Karstens- — Primer WordPress Theme von
GoDaddy